Se connecter
Nous suivre
0

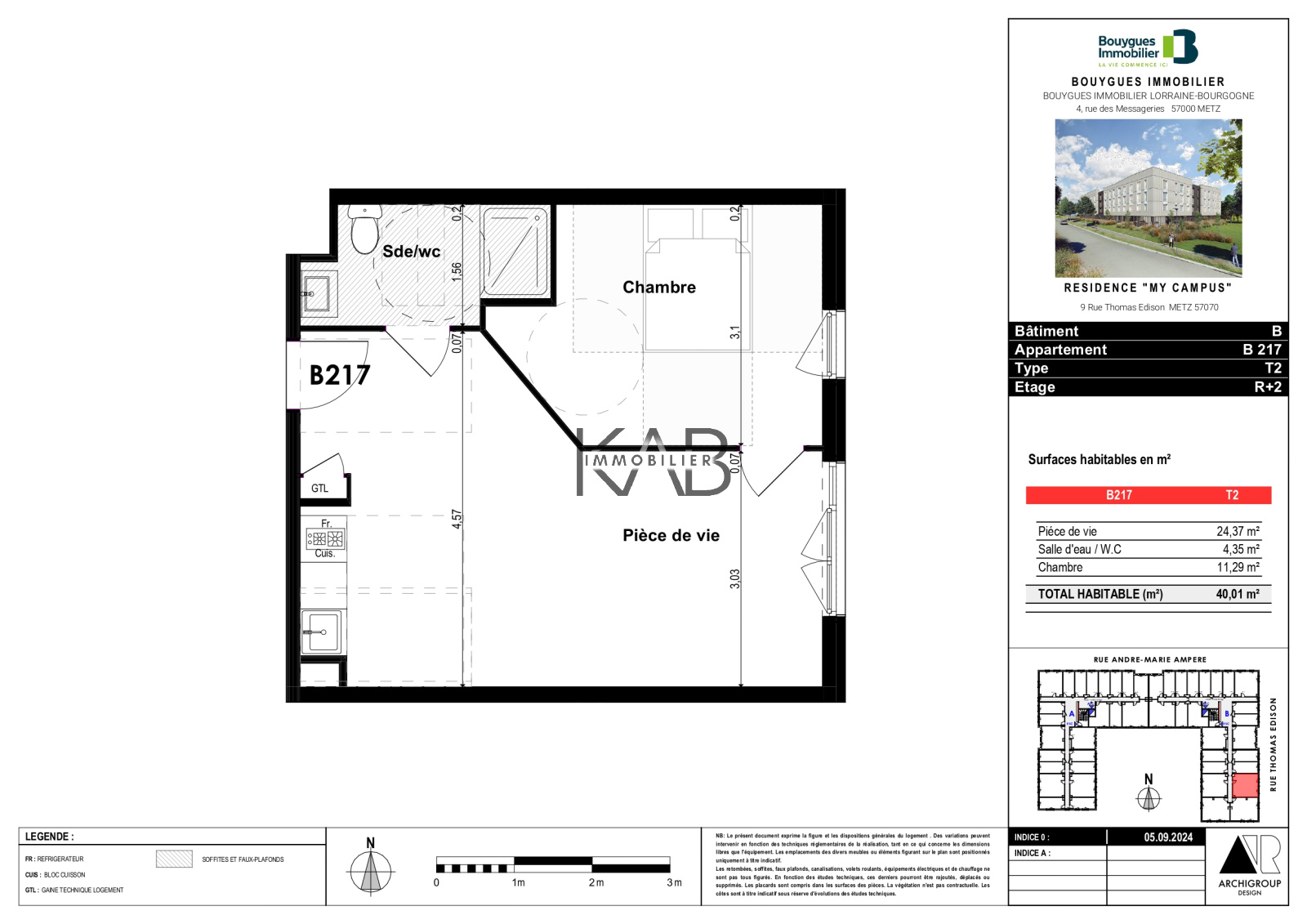
A VENDRE ! F2 neuf de 40.01m2 à METZ Technopôle

Metz (57070)
Réf : 37

Au coeur du Technopôle de METZ, 9 rue Thomas Edison: découvrez la nouvelle résidence pour étudiants et jeunes actifs, avec 140 logements du studio au F2 avec stationnement au sous sol. Les résidents profiteront d'une vie en communauté avec des espaces communs : une laverie, salles d'études, une salle de sport et une cafétéria ainsi qu'un patio extérieur aménagé !

Découvrez cet appartement 2 pièces de 40.12m2 qui se compose d'une pièce à vivre de 24.37m2, une chambre de 11.29m2, une salle d'eau avec douche et un WC.

Le logement est livré entièrement fini avec une kitchenette équipée d'un évier en inox, une plaque de cuisson à deux foyers électriques, un réfrigérateur sous plan de travail, un meuble haut recevant la hotte et une niche pour le micro-ondes.

Le promoteur vous propose un PACK MEUBLES à partir de 2 790€ pour une livraison clé en main et une mise en location rapide !

Bénéficiez d'une rentabilité plus importante grâce aux infrastructures qu'offrent la résidence, répondant au besoin de logements étudiants toujours en forte croissance.

Proche de toutes les écoles : le Campus Centrale Supelec, l'Ecole supérieur d'Informatique, l'IMC Business School sont à 10 min à pied et l'ENIM, le Campus des Arts et Métiers, l'IAE, l'ESITC et Georgia Tech à moins de 10 min à vélo.

A proximité, des lignes de transports en commun (Mettis A et B et bus C17)

Chauffage urbain par radiateurs + pompe à chaleur collectif

Livraison 3ème trimestre 2026, FRAIS DE NOTAIRE REDUITS !

D'autres lots sont disponibles à la vente, n'hésitez pas à contacter l'agence KAB IMMOBILIER pour plus de renseignements au 03 72 72 92 25

découvrir le bien
Prix du bien 196 000 €
Pièce(s) 2
Chambre(s) 1

Caractéristiques du bien

Caractéristiques Valeurs
Code postal 57070
Surface habitable (m²) 40,12 m²
Surface loi Carrez (m²) 40,12 m²
Nombre de chambre(s) 1
Nombre de pièces 2
Etage 2
Ascenseur OUI
Nb de salle d'eau 1
Cuisine Kitchenette
Type de cuisine Equipée
Mode de chauffage Pompe à chaleur
Type de chauffage Radiateur
Format de chauffage Collectif
Visiophone OUI
Balcon NON
Terrasse OUI
Cave NON
Année de construction 2026

Infos financières

Caractéristiques Valeurs
Prix de vente honoraires TTC inclus 196 000 €

Bilans énergétiques

DPE GES
Ce bien vous intéresse ?
Fieldset par défaut
Fieldset par défaut
Validation

* Champs obligatoires

Contacter l'agence
Validation
Les informations recueillies sur ce formulaire sont enregistrées dans un fichier informatisé par La Boite Immo agissant comme Sous-traitant du traitement pour la gestion de la clientèle/prospects de l'Agence / du Réseau qui reste Responsable du Traitement de vos Données personnelles. La base légale du traitement repose sur l'intérêt légitime de l'Agence / du Réseau. Elles sont conservées jusqu'à demande de suppression et sont destinées à l'Agence / au Réseau. Conformément à la loi « informatique et libertés », vous disposez des droits d’accès, de rectification, d’effacement, d’opposition, de limitation et de portabilité de vos données. Vous pouvez retirer votre consentement à tout moment en contactant directement l’Agence / Le Réseau. Consultez le site https://cnil.fr/fr pour plus d’informations sur vos droits. Si vous estimez, après avoir contacté l'Agence / le Réseau, que vos droits « Informatique et Libertés » ne sont pas respectés, vous pouvez adresser une réclamation à la CNIL. Nous vous informons de l’existence de la liste d'opposition au démarchage téléphonique « Bloctel », sur laquelle vous pouvez vous inscrire ici : https://www.bloctel.gouv.fr Dans le cadre de la protection des Données personnelles, nous vous invitons à ne pas inscrire de Données sensibles dans le champ de saisie libre.
Ce site est protégé par reCAPTCHA, les Politiques de Confidentialité et les Conditions d'Utilisation de Google s'appliquent.