Se connecter
Nous suivre
0

Nouveau à découvrir ! Appartement 2 pièces NEUF - Balcon - Parking privatif

Metz (57070)
Réf : 111

Laissez-vous séduire par ce nouveau programme "Les Jardins du Golf" - LIVRAISON prévue pour le deuxième trimestre 2028

Résidence intimiste à taille humaine composée de deux bâtiments, située dans un emplacement privilégié : à 2 min du Technopôle et du Parc des Expositions, proche des écoles supérieures, du centre commercial Metzanine et à 10 min en voiture de la gare de Metz.

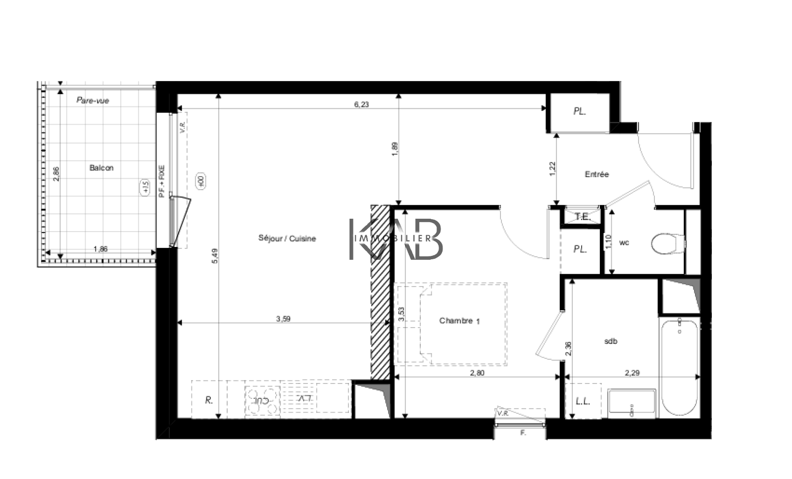
Au 1er étage, découvrez cet appartement 2 pièces d'une superficie de 45m2 qui se compose : d'une entrée avec placard intégré, une pièce de vie de 24m2 avec cuisine ouverte à équiper bénéficiant d'un accès vers un balcon de 5m2, un dégagement nuit, un WC indépendant, une chambre de 10m2 et ,une salle de bains dotée d'une baignoire et d'un meuble vasque en céramique.

Un stationnement privatif en sous-sol vient parfaire le bien.

Plan du logement adaptable en fonction de vos besoins et vos envies.

Programme conforme à la RE2020

Fenêtres double vitrage PVC avec volets motorisés 

Chauffage au sol assuré de manière hybride par des pompes à chaleur avec appoint par une chaudière collective au gaz

Revêtement des sols : parquet stratifié pour les pièces sèches et carrelage en grès émaillé pour les pièces humides

Plusieurs appartements du studio au 4 pièces sont disponibles sur ce programme, n'hésitez pas à nous contacter pour plus de renseignements au 03 72 72 92 25 - KAB IMMOBILIER 38 rue Saint-Pierre à METZ 

Prix du bien 187 000 €
Pièce(s) 2
Chambre(s) 1

Caractéristiques du bien

Caractéristiques Valeurs
Code postal 57070
Surface habitable (m²) 45,27 m²
Surface loi Carrez (m²) 45,21 m²
Nombre de chambre(s) 1
Nombre de pièces 2
Etage 1
Nb de salle de bains 1
Mode de chauffage Pompe à chaleur
Type de chauffage Au sol
Format de chauffage Collectif
Balcon OUI
Exposition Ouest
Année de construction 2026

Infos financières

Caractéristiques Valeurs
Prix de vente honoraires TTC inclus 187 000 €

Bilans énergétiques

DPE GES
Ce bien vous intéresse ?
Fieldset par défaut
Fieldset par défaut
Validation

* Champs obligatoires

Contacter l'agence
Validation
Les informations recueillies sur ce formulaire sont enregistrées dans un fichier informatisé par La Boite Immo agissant comme Sous-traitant du traitement pour la gestion de la clientèle/prospects de l'Agence / du Réseau qui reste Responsable du Traitement de vos Données personnelles.
La base légale du traitement repose sur l’intérêt légitime de l'Agence / du Réseau.
Elles sont conservées jusqu'à demande de suppression et sont destinées à l'Agence / au Réseau.
Conformément à la loi « informatique et libertés », vous pouvez exercer votre droit d'accès aux données vous concernant et les faire rectifier en contactant l'Agence / le Réseau.
Si vous estimez, après avoir contacté l'Agence / le Réseau, que vos droits « Informatique et Libertés » ne sont pas respectés, vous pouvez adresser une réclamation à la CNIL.
Nous vous informons de l’existence de la liste d'opposition au démarchage téléphonique « Bloctel », sur laquelle vous pouvez vous inscrire ici : https://www.bloctel.gouv.fr 
Dans le cadre de la protection des Données personnelles, nous vous invitons à ne pas inscrire de Données sensibles dans le champ de saisie libre
Ce site est protégé par reCAPTCHA, les Politiques de Confidentialité et les Conditions d'Utilisation de Google s'appliquent.